桜川グリーンコーポラス

大阪市 西区 中古マンション桜川グリーンコーポラス

桜川グリーンコーポラスの購入・売却・無料査定はリノベーションのリファインド

〔物件ID〕 0000050606
中古マンション New
3,180 万円
所在地 大阪府大阪市浪速区桜川2丁目
交通 大阪市営千日前線 「桜川」駅 徒歩3分
阪神なんば線 「桜川」駅 徒歩4分
南海汐見橋線 「汐見橋」駅 徒歩7分
専有面積 61.05m2 (18.46坪)
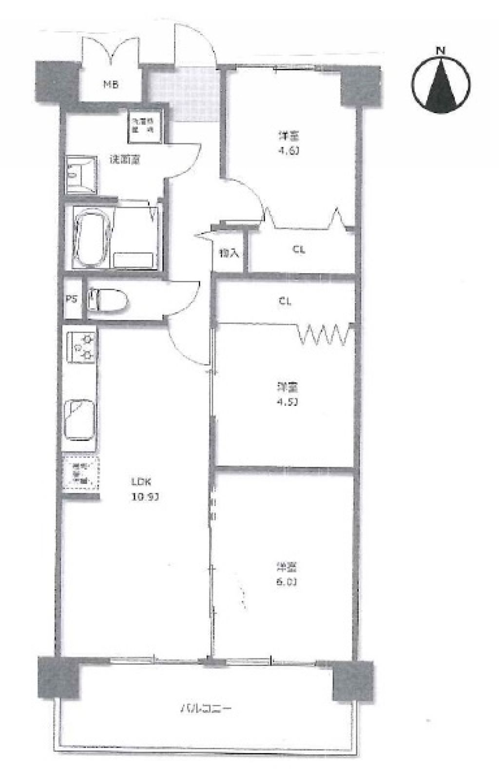
間取り 2SLDK
築年月 1974年10月(昭和49年10月)
所在階/階数 4 階 / 10 階
  • 南向き
  • 駐車場設備有
  • リフォーム・リノベーション済み
  • エレベーター
桜川グリーンコーポラスの物件写真
  • 桜川グリーンコーポラスのMAP・周辺環境
    桜川グリーンコーポラスの物件概要
    所在地 大阪府大阪市浪速区桜川2丁目
    交通 大阪市営千日前線 「桜川」駅 徒歩3分
    阪神なんば線 「桜川」駅 徒歩4分
    南海汐見橋線 「汐見橋」駅 徒歩7分
    価格 3,180万円
    小学校区塩草立葉小学校 (徒歩 9 分)中学校区難波中学校 (徒歩 8 分)
    専有面積 61.05m2(18.46坪) 間取り 2SLDK
    バルコニー面積 7.97m2 バルコニー向き
    その他面積 ---
    構造 SRC 所在階/階建 4階/10階
    築年月 1974年10月(昭和49年10月) 総戸数 147戸
    土地権利 所有権 用途地域 準工
    管理会社 日本ハウズイング株式会社
    管理形態 管理会社に全部委託 管理員 常駐
    管理費 8,500円 修繕積立金 12,390円
    駐車場 空無 駐車場料金 ---
    その他使用料 ---
    現況 未完成 引渡 期日指定(2025年12月)
    取引態様 仲介 国土法届出 不要
    コメント ◇地上10階建てマンション、4階のお部屋です
     ・南向きバルコニー
     ・全面リフォーム工事中12月完了予定
    桜川グリーンコーポラス
    ・・・・・
    ※現在塩草小学校と立葉小学校は合併しており塩草立葉小学校となっています。
     徒歩分数は塩草立葉小学校までの距離で算出しています※
    浪速区桜川にある1974年に建てられた大規模(147戸)の分譲マンション
    維持管理良好で、大変美麗な共用部を維持されています
    マンション北向かいには公園があり、敷地内の植栽も豊かで
    春には桜の木も望めます◎
    管理人の方が常駐していて、
    住人さま同士のコミュニケーションも取られており
    安心してお住まい頂けるコミュニティ環境です
    近隣には夜間に複数の警備員がおり、
    物件も千日前通りから入ってすぐのため
    意外と遅い時間にも歩きやすいエリアです
    マンションエントランスの南側はオートロック仕様です

    [徒歩]
    --------------------
    ローソン 桜川二丁目約2分
    ローソン 幸町通二丁目約3分
    ローソン LS 浪速稲荷約4分
    ローソン 幸町一丁目約4分
    共栄薬局約2分
    ダイコクドラッグ桜川駅前薬店約3分
    松崎智彦診療所約2分
    徳田クリニック約2分
    眞弓歯科医院約2分
    中野歯科医院約3分
    なにわ病院約3分
    青山アール矯正歯科・大阪約3分
    岡崎歯科約3分
    菱川クリニック約4分
    みかみ歯科約4分
    原歯科約4分
    稲荷町公園約1分
    食品館桜川約3分
    マックスバリュ塩草店約約7分
    スーパーマーケットオオカワ桜川店約2分
    更新日 2025年11月29日 次回更新予定日 2025年12月13日
    ローンシミュレーション
    自己資金 万円
    ※別途、諸費用が必要です。
    ローン借入額 万円
    内ボーナス時
    支払い
    万円
    ※ボーナス返済月の加算額ではありません。
    ※お借入れ予定額の50%以下の金額をご入力ください。
    金利
    返済年数
    • 月々(毎月返済額)
    • 0
    • ボーナス(ボーナス時加算額)
    • 0

    物件情報と現況に差異がある場合、現況を優先します。
    掲載物件は売却済み、売却中止、価格変更となる場合がありますので、予めご了承ください。
    仲介物件には所定の仲介手数料(消費税含む)が必要です。

    会社名 株式会社リファインド
    ホームページ https://www.refind.co.jp/
    メールアドレス info@refind.co.jp
    免許番号 大阪府知事 (3) 第56417号
    リファインド北堀江店
    リファインド北堀江店
    所在地 〒550-0014 大阪市西区北堀江2-10-18
    TEL 06-6556-6411
    FAX 06-6556-6422
    営業時間 10:00~19:00
    定休日 毎週水曜日
    交通 Osaka Metro長堀鶴見緑地線 / 西大橋駅 徒歩1分
    Osaka Metro長堀鶴見緑地線 / 西長堀駅 徒歩5分
    リファインド天満店
    リファインド天満店
    所在地 〒530-0035 大阪市北区同心2-11-5
    TEL 06-4309-6677
    FAX 06-4309-6688
    営業時間 10:00~19:00
    定休日 毎週水曜日
    交通 JR大阪環状線 / 天満駅 徒歩6分
    Osaka Metro堺筋線 / 扇町駅 徒歩6分
    同じエリアの売り出し物件
    大阪府大阪市浪速区桜川の中古マンション情報
    難波スカイハイツ
    中古マンション
    2,580万円/2LDK
    • 大阪府大阪市浪速区桜川2丁目
    • 阪神なんば線「桜川」駅 徒歩1分
    • [専有面積] 54.00m2
    • 月々0
    • ボーナス0
    大阪市浪速区の中古マンション情報
    三晃グリーンマンション難波
    中古マンション
    2,480万円/3LDK
    • 大阪府大阪市浪速区塩草3丁目
    • JR大阪環状線「芦原橋」駅 徒歩3分
    • [専有面積] 58.04m2
    • 月々0
    • ボーナス0
    プレサンス難波インフィニティ
    中古マンション Down
    2,590万円/1LDK
    • 大阪府大阪市浪速区日本橋東2丁目
    • 大阪市営堺筋線「恵美須町」駅 徒歩5分
    • [専有面積] 33.06m2
    • 月々0
    • ボーナス0
    ルネッサなんばタワー
    中古マンション
    17,500万円/1SLDK
    • 大阪府大阪市浪速区湊町2丁目
    • JR関西本線「JR難波」駅 徒歩1分
    • [専有面積] 112.65m2
    • 月々0
    • ボーナス0
    難波スカイハイツ
    中古マンション
    2,580万円/2LDK
    • 大阪府大阪市浪速区桜川2丁目
    • 阪神なんば線「桜川」駅 徒歩1分
    • [専有面積] 54.00m2
    • 月々0
    • ボーナス0
    物件を探す ×
    物件種別
    エリア
    価格
    建物面積
    土地面積
    専有面積
    間取り
    駅徒歩
    築年数
    こだわり条件
    お気軽にお問い合わせください。
    • 06-6556-6411
    • 営業時間:10:00~19:00/定休日:毎週水曜日
    • 営業時間:10:00~19:00/定休日:毎週水曜日